江北再迎重磅利好!刚刚,南京航空航天大学江北新区国际校区规划出炉!与此同时,该校区的配套保障建设项目已经开工。
0
1
规划公示!211高校江北新校区规划出炉
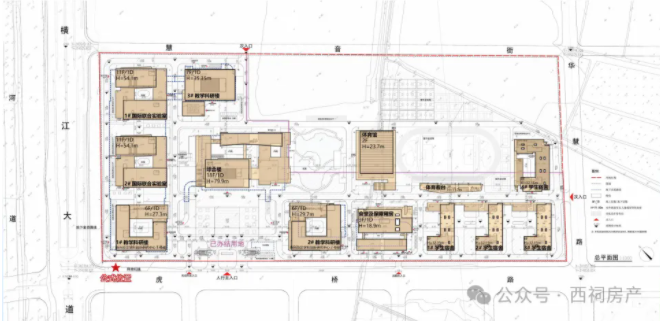
11月28日,南京航空航天大学江北新区国际校区规划设计方案正式出炉!该校区总建筑面积约37.68万平方米,其中:地上建筑面积约32.19万平方米;地下建筑面积约5.49万平方米。主要建设内容包括综合楼、教学科研楼、 国际联合实验室、食堂及保障用房、学生宿舍、地下车库等,建设单位为南京航空航天大学。



该项目规划用地性质为A31高等院校用地,容积率≤2.5,绿地率≥35%,建筑高度≤60m(标志性建筑控高80m)。
项目位于江北新区江浦街道,东至慧音街、西至虎桥路、南至华慧路、 北至横江大道,占地面积约26.59万平方米。
0
2
总投资超2亿元!南航配套项目已开工
南京航空航天大学江北新区国际校区位于江北五桥,紧邻南农江北校区,周边有雅居乐汇港城等小区。
2018年8月6日,南京江北新区与南京航空航天大学在南航将军路校区签署了《共同推进南京航空航天大学江北新区国际校区建设合作框架协议》。根据协议,双方将全面建立战略性、紧密型合作关系,深化人才、技术、资源的共享与互动,积极推进南京航空航天大学江北新区国际校区建设,促进江北新区与南京航空航天大学共同发展。
2024年10月,南京航空航天大学扬子江校区奠基仪式在南京市江北新区举行。南京航空航天大学校长姜斌宣布《南京航空航天大学关于江北新区国际校区更名的通知》。他表示,为突出校区地域特色和文化认同,统筹“一校四区一港”办学布局协调发展,经学校研究审议,并报工业和信息化部同意,决定将江北新区国际校区更名为扬子江校区,并作为南京航空航天大学新校区加快建设。
南京航空航天大学江北新区国际校区占地近400亩,规划总建筑面积36.34万平方米(其中地上32.34万平方米,地下4万平方米),包含学院教学楼、国际联合实验室、综合楼、学生宿舍、食堂、图书馆、风雨操场、体育场馆、国际学生交流中心及附属用房等,建成后可容纳师生4500余人,将面向世界科技前沿和国家战略需求,围绕低空经济、集成电路、人工智能、直升机、无人机、装备制造等领域推进校地融合,建设成为我校新兴学科交叉先导区、校地融合发展示范区、国际合作育人拓展区。
2025年8月8日,南京航空航天大学江北新区国际校区公共基础保障能力(一期)建设项目施工许可正式批复。据显示,该项目建筑面积35958.07平方米,其中,地上建筑面积32184.18平方米,地下建筑面积3773.89平方米,工程规模为新建1号学生公寓、食堂及保障用房、室外附属设施等。合同金额为21458.58万元,合同工期为709天,这也意味着该项目着有望于2027年建成。