刚刚,中堃G72规划出炉!河西中又添低密四代宅洋房!
01
河西中“贤坤花园”?中堃低密四代宅全新曝光
刚刚,中堃G72地块规划出炉,河西中又一低密四代宅全新亮相!
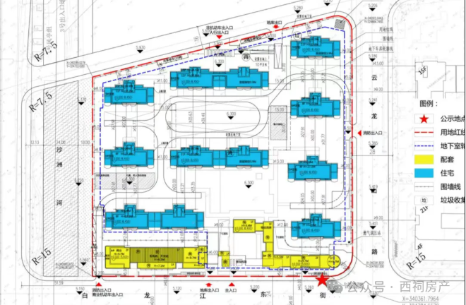
项目拟建9栋7-11F住宅以及1栋2F商业,其中住宅3栋楼首层架空,架空层3.9米。
从效果图来看,有种河西中版“贤坤花园”既视感!户户标配弧形露台,米白色主基调,项目中央还配置大面积水景,依然是“贤坤”气质,颜值拉满。
作为河西中鲜见的低密地块,G72项目从规划之初就自带焦点:
容积率仅1.35!在高层扎堆的河西中,7-11F的低密洋房非常稀缺,也意味着更高得房率、更宽楼间距,居住舒适度直接拉满;
3栋楼设3.9米架空层,不仅提升社区通透感,更能拓展公共活动空间,适配健身、休闲等多元需求;
户户带露台+金属质感设计,从效果图来看,建筑线条简洁大气,米白色外立面搭配弧形露台,现代感与高级感兼具。
该项目不止是住宅,更是集“高端居住+高端商业”于一体的综合社区。
效果图中可清晰看到商业配套规划,未来业主在家门口就能享受高品质商业服务,生活便利性直接拉满。
相较中堃G67地块,G72体量更大,这意味着项目开发有更大的发挥空间。有更灵活的产品设计和园林景观布局,无论是户型打造、社区动线规划,还是绿化覆盖率,都有更充足的优化空间。
从中堃过往的御用团队来看,大概率还是名谷设计+顺景园林+北京大象的“大师天团”,以及“一对一深度定制”。毫无疑问,G72成为河西中改善市场的“六边形战士”。目前项目户型尚未公布,不过已有很多买房人在关注了!
据公开信息,2025年10月11日,中北盛业以13.23亿元总价拿下河西中G72,成交楼面价34083元/㎡,溢价率0.3%。目前项目建设单位为南京中北东堃新胜房地产开发有限公司,项目由中堃置业、中北地产、南京一九一二集团三大实力房企联合打造。

G72项目地段也极为优越,配套成熟!
交通:紧邻河西大街,出门即达地铁7/10号线中胜站,双地铁加持+河西大街、凤台南路主干道交汇,出行四通八达;
商业:一街之隔就是龙湖河西天街,3公里内覆盖元通商圈IFC、华采天地等顶级商业体,购物休闲无需远行;
医疗:与明基医院仅一街之隔,3公里内还有河西儿童医院,健康保障触手可及;
教育:直线3公里内有南师附中新城教育集团科技园校区等优质教育资源(具体学区以官方划分为准);
产业:周边聚集新城科技园、河西金融城、阿里巴巴江苏总部、小米南京科技园等产业高地,就业、圈层优势显著。
02
中堃元年!四大低密顶豪将入市
2026年堪称“中堃元年”,南京多个核心地段的顶级项目都将陆续亮相入市,中堃高端市场将“大展拳脚”。
中堃河西中G67项目:
预计今年下半年上市。同样是现房销售,相比G72,显然中堃G67的上市节奏会更快!
项目打造4栋8-10层洋房四代宅,部分楼栋首层架空,容积率1.35,同样将打造低密高端住区!据小道消息,户型面积段在140㎡左右,只有100套不到,又是要抢的节奏。
珠江路顶豪金陵VILLA:
预计2026年年中公开。作为新街口低密四代宅,共打造2栋11-14F,全盘仅66套,目前放风8万+/㎡,总价1200万起。
项目将打造当代艺术浮岛花园社区,由名谷设计创始人、顺景园林院长、北京大象设计院长三位大师联席。全维1v1深度定制,主力户型面积约143-165㎡,还有190-230㎡的顶跃,得房率约100%。有高端私人会所+户户露台,自持Modern商业。
城中老门东顶豪门东VILLA:
位于夫子庙旁边的门东VILLA,极致稀缺,是南京城墙内近10年唯一低密纯住宅土地!他也是目前南京主城唯一的分户式科技叠墅,预计总价约2500万!
项目规划仅5栋4层叠墅,只有48套,上叠303㎡,下叠373㎡,户户都有庭院、露台、私家车位。沿袭中堃开创的定制化装修,还配备了分户式科技系统。
另外,目前江心洲贤坤花园二期还有极少量房源在售,建面约199、265㎡大平层,以及建面约330、370㎡的稀缺底墅。