继规划调整公示之后,刚刚,晒地近7年的东方万汇城南区三期地名正式公布:万汇科创大厦,南京江北隧道口再添地标建筑!
01
地名曝光!江北核心区新添地标建筑
近日,南京市民政局官网发布了“2026年首期地名公告”,位于江北核心区隧道口的“万汇科创大厦”名列其中!
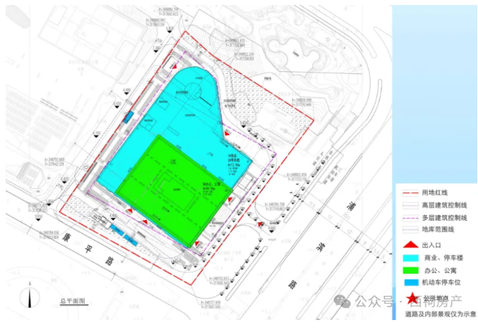
公告显示,万汇科创大厦位于江浦街道,东至浦滨路,南至康平路,西至万汇城南区,北至浦口大道,即是去年刚刚改过规划的万汇城南区三期(NO.2019G110地块)。
△万汇科创大厦
作为东方万汇城综合体的重要组成部分,万汇科创大厦总用地面积约11651.66㎡,主要功能为商业、停车楼、办公及酒店式公寓。
根据规划,地块将拟建总建筑面积约7.95万平方米,其中:
地上建筑面积约6.46万平方米,主要功能为商业、停车楼、办公及酒店式公寓;地下建筑面积约1.49万平方米,主要功能为商业、地下机动车车库及其配套用房。
高约99.95米,地下2层、地上25层。具体到楼层分布上:负2层为车库,负1层及地上1层为商业,2-4层为停车楼,5-19层为办公,20-25层为公寓。
公开资料显示,2019年2月6日,该地块经过1轮报价,最终被南京地铁以6100万元竞得,而后东方置地注资,组成南京捷运通途置业有限公司建设该项目。
02
搁置多年!有望整体复活
东方万汇城位于江北应天大街隧道口,紧邻10号线临江地铁站,是东方置地旗下的万汇城商业打造的城市级商业综合体,规划总建筑面积超过100万㎡,其中商业建筑面积45万㎡,分为南、北两区,目前南北区公寓均已交付使用,北区21万㎡商业已开业。
而万汇城南区的购物中心以及上文的南区三期大楼却一直“难产”。据悉,南区购物中心于2017年启动建设,2019年初就传出了停工的消息。

△东方万汇城南区购物中心(实拍于2025年7月)
万汇城南区购物中心为何停工?据此前官方回复:“万汇城南区目前建设单位和总包方在诉讼阶段停工,项目停工后我单位也多次约谈了建设单位,重点关注项目司法审理的情况,据企业反馈,双方已经在省高院进行二审上诉。目前二审正在审理当中。”
去年12月,东方万汇城南区购物中心迎来规划调整,其地下空间将同步扩容约1146.4㎡(商业部分增加约393.26㎡)。据悉,此次更改是为了与东侧地块(即万汇科创大厦)形成统一的整体开发布局。>>>沉寂6年!新规划曝光!南京隧道口烂尾地标复活了?
近期,随着地名正式公示及规划调整等一系列动作,长期停滞的东方万汇城南区项目复苏在望。