近日,金地商置青奥G08地块案名公布:金陵云阙。项目将打造江北核心区首个“悬浮四代宅”,户型建面约108-165㎡,预计今年7-9月入市。
江核首个悬浮四代宅
金陵云阙以“江核首个悬浮四代宅”为核心设计理念,打破传统四代宅的设计边界,汲取金陵水墨画意境,将“地上云”的灵动景观与“天下山”的错落建筑完美融合,西侧衔接超1.7万㎡规划市政公园,内部以约530米风雨连廊串联12座主题架空层,更凭借“错层悬浮+生态包裹”的创新露台设计,平衡自然交互与居住隐私,构建完整立体生态系统。
外立面采用干挂陶板、铝板与窗式幕墙,室内融入奢石、岩板与木饰面,让建筑兼具质感与温度。
12栋住宅全部首层架空 打造4500㎡超级会所群
项目最大亮点在于12栋住宅首层全部释放,打造全龄段泛会所,涵盖儿童游乐、健身运动、社交共享、老人休闲等多元功能,区别于传统住宅首层封闭做车库的设计,居住舒适度大幅提升。
约530米全风雨连廊衔接所有楼栋,业主无论晴雨都能实现从下车到入户的无露天归家动线,这样的配置在南京豪宅市场都极为罕见。
社区不仅有全架空泛会所,更打造近4500㎡超级会所群,覆盖全龄段生活场景,满足健身、社交、休憩、娱乐等多元需求。
5大主题宅间花园 衔接1.7万㎡市政公园
项目景观以水墨意境为灵感,构建“两轴一脉,三位一体”布局,中央绿轴串联5大主题宅间花园,与外部西侧超1.7万㎡市政公园(规划)无缝衔接。
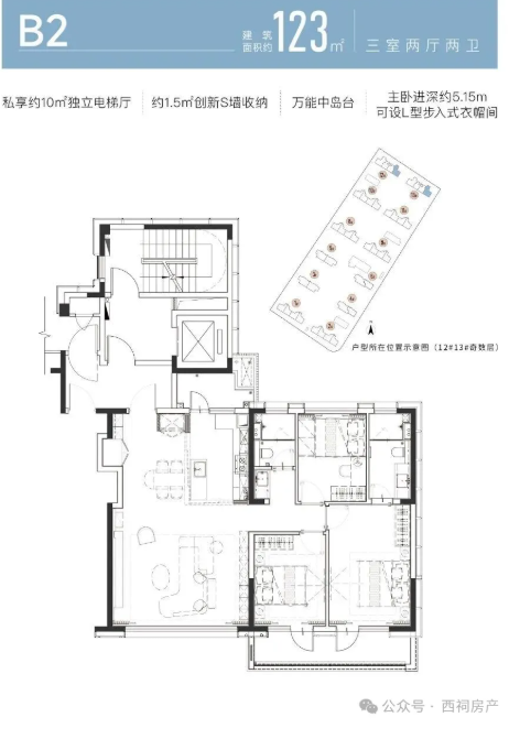
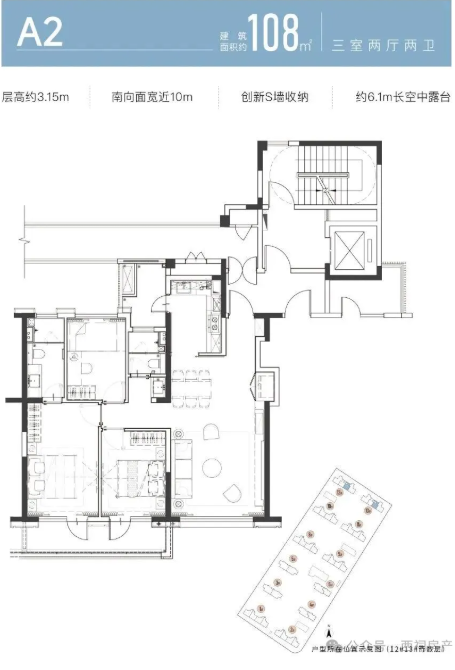
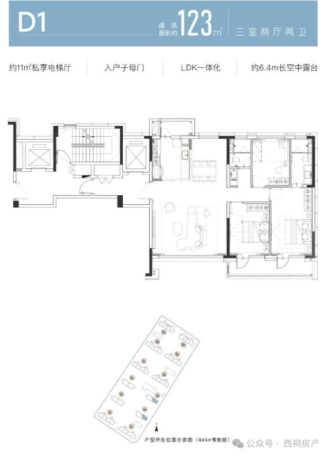
三大实力主体联手打造 主力户型123㎡
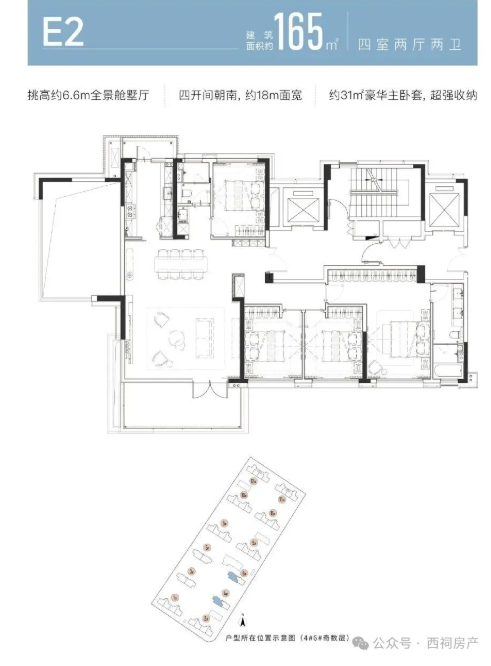
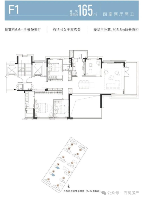
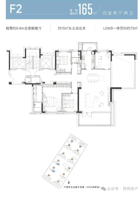
金陵云阙由江北新区科投集团、江北新区公建中心与金地管理三大实力主体联手打造。整体规划12栋16-26层住宅,打造建面约108、123、165㎡三大户型,其中108㎡小户型主要分布在2栋高层,165㎡大户型集中于3-6号楼,主力锁定123㎡小高层产品。
户型得房率超100%,108㎡三室两厅两卫层高约3.15m,南向面宽近10m,搭配创新S墙与6.1m空中露台;
主力123㎡户型格局方正,部分配备约10㎡独立电梯厅与S墙收纳,主卧可打造L型步入式衣帽间;


165㎡户型中央楼座户型更是打造约6.6m全景舱墅厅,拥有270°全景视野,卧室空间宽敞,改善体验一步到位。



项目位于青奥板块,浦滨路一路之隔即为浦口城南中心。紧邻金地未来学校、青奥体育公园、城南河和在建大悦城综合体、在建地铁11号线康盛路站,公共配套资源十分优越,周边有观江樾、阅云台、铂岸江璟等项目。